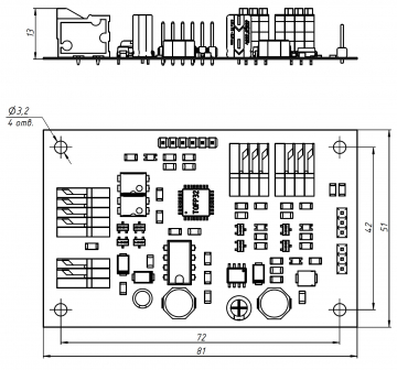
Плата синхронизации Sen sync V1.3S.

Контроллер Sen_Sync V1.3S.

Системы ЧПУ, к которым возможно подключить Sen_Sync V1.3S:

  • Mach3 LPT-DPTR 1.03
  • Mach3 RNRMotion USB
  • Mach3 RNRMotion Ethernet
  • Mach3 ZKMotion
  • Mach3 GEKO G540
  • NC-Studio PCIMC-3D
  • NC-Studio PCIMC-3G
  • DSP RichAuto A11E, A18E и другие.
  • DSP 0501
  • LinuxCNC LPT-DPTR 1.03 (также под управлением Mesa EP7i92)
  • LinuxCNC Mesa 7i76
  • AWC, Ruida (контроллера для CO2 лазера)

При использовании двух двигателей по одной оси и двух датчиков домашнего положения, плата синхронизации Sen_Sync дает возможность управлять каждым двигателем отдельно.

Первый двигатель, который вернулся в начало координат останавливается, при этом второй продолжает движение до исходной точки. Это позволяет обеспечить перпендикулярность осей.

Технические характеристики

  • Напряжение питания контроллера 12-48 VDC.
  • Тип подключаемых датчиков NPN.NO, NPN.NC (тип NO или NC переключается перемычками на плате)
  • Прерывание сигнала Pull- (5V)

Алгоритм работы

При включении питания, плата синхронизации Sen_Sync непрерывно опрашивает датчики домашнего положения. Как только сработает один из датчиков, контроллер прерывает сигнал PULL- на драйвер, соответствующий датчику. Далее ожидается срабатывания второго датчика, после чего прерывается сигнал PULL- на второй драйвер. Таким образом обе стороны одной оси, но двух двигателей возвращаются в домашнее положение. После этого на контроллер подается сигнал OUT, означающий срабатывание датчика по оси.

Sen_Sync_V1.3S может повторить цикл неограниченное количество раз, для Sen_Sync V1.3 требуется перезапуск системы (режим работы 2).

Аварийная блокировка

  • если один из датчиков при подаче питания активен, то портал по оси Y полностью блокируется, в окне статуса датчиков системы управления станком мигает статус датчика по оси Y, так же мигает светодиод выхода OUT на плате Sen_sync;
  • если оба датчика при подаче питания активны, то портал по оси Y будет заблокирован при повторном срабатывании одного из датчиков.